SUNSET RIDGE CUSTOM / B360-CT

  • $198,125
Skyline
SUNSET RIDGE CUSTOM / B360-CT
  • $198,125

Overview

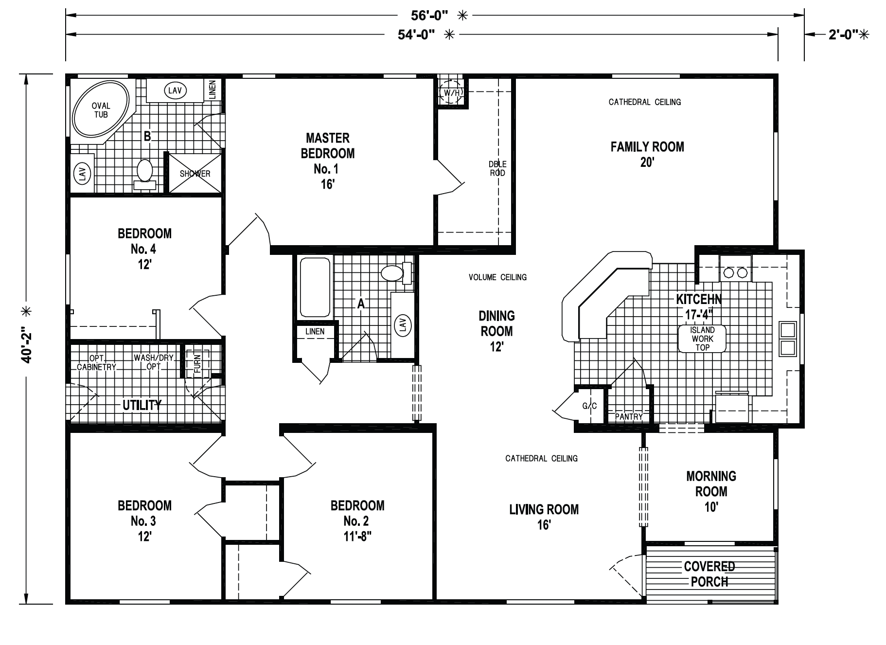
  • Multi Section
  • Home Type
  • 4
  • Bedrooms
  • 2
  • Bathrooms
  • 2151
  • Sq Ft

Description

The Custom Villa series has been designed to reflect the needs of families through high-end craftsmanship and quality – with popular high-end amenities and distinctive design details. Manufactured in San Jacinto, California and backed by over 65 years of manufacturing experience, a 15-month warranty and stellar customer service – take a look for yourself to see why the Custom Villa series by Skyline Homes is the right decision for you and your family.

Home Documents

CUSTOM VILLA STANDARD FEATURES

Details

  • Dimensions: 54 / 56 / 54 X 40
  • Sections: 3

Similar Homes

The home prices listed on this website reflect the base model only. Prices do not include optional upgrades, customizations, taxes, fees, or freight costs, which will vary depending on the home and location. The images displayed may not represent the base model and could include optional upgrades, features, and finishes that are not included in the base price. Please contact us for specific pricing, available options, and full details.

Compare listings

Compare
Skyline Homes
  • Skyline Homes